€
EUR
Biens Immobiliers
A propos de nous
Off-Market
Programmes Immobiliers
Contactes
Mais
Biens Immobiliers
A propos de nous
Off-Market
Programmes Immobiliers
Contactes
0
0
Bâtiment en ruines à Graça - Projet approuvé poue condominium
Lisboa, Lisboa
Retour
\
Bâtiment en ruines à Graça - Projet approuvé poue condominium - Lisboa, Lisboa
Partager Immeuble
Facebook
X
Pinterest
WhatsApp
Copiar link
Link copiado
Imprimer la fiche
Envoyer la propriété à un ami
Insérer un nom
Insérer un email
Entrez une adresse email valide
Insérer un nom
Insérer un email
Entrez une adresse email valide
J´ai lu et accepte les termes et conditions énoncés.
Savoir plus »
Pour terminer cette opération, vous devez lire et accepter nos conditions.
Champs obligatoires *
Envoyer
Photos
Plans
Seguir imóvel
Seguir imóvel
Receba um alerta quando existir uma Baixa de Preço
Nom
Insira o seu Nome
E-mail
Entrez votre email
Entrez une adresse email valide
Li e aceito a
Politique de confidentialité
Pour terminer cette opération, vous devez lire et accepter nos conditions.
Entrez le code de l'image
Code
Envoyer
Bâtiment en ruines à Graça - Projet approuvé poue condominium
1 900 000 €
Ref:
6372-PRE-AB
675 m²
1100 m²
427,8 m²
Bâtiment en ruines avec projet approuvé | Licence payante | Graça
Construction à Ruin pour
la construction
d’un
condominium exclusif,
au cœur de Graça, l’un des quartiers les plus authentiques et les plus appréciés de Lisbonne, alliant tradition, identité historique et attrait résidentiel et touristique croissant.
Nous présentons une opportunité d’investissement unique : bâtiment en ruines avec
projet approuvé et licence payante
, sur un terrain urbain, avec parking, prêt pour le début immédiat de la construction d’un
condominium haut de gamme et exclusif avec seulement 7 sections uniques
, conçu pour offrir un bien-être et une confidentialité maximaux.
Un
concept résidentiel de luxe à faible densité
, avec
1 191 m2
de surface brute construite, situé dans
les zones ARU et ORU avec 6 % de TVA sur la construction.
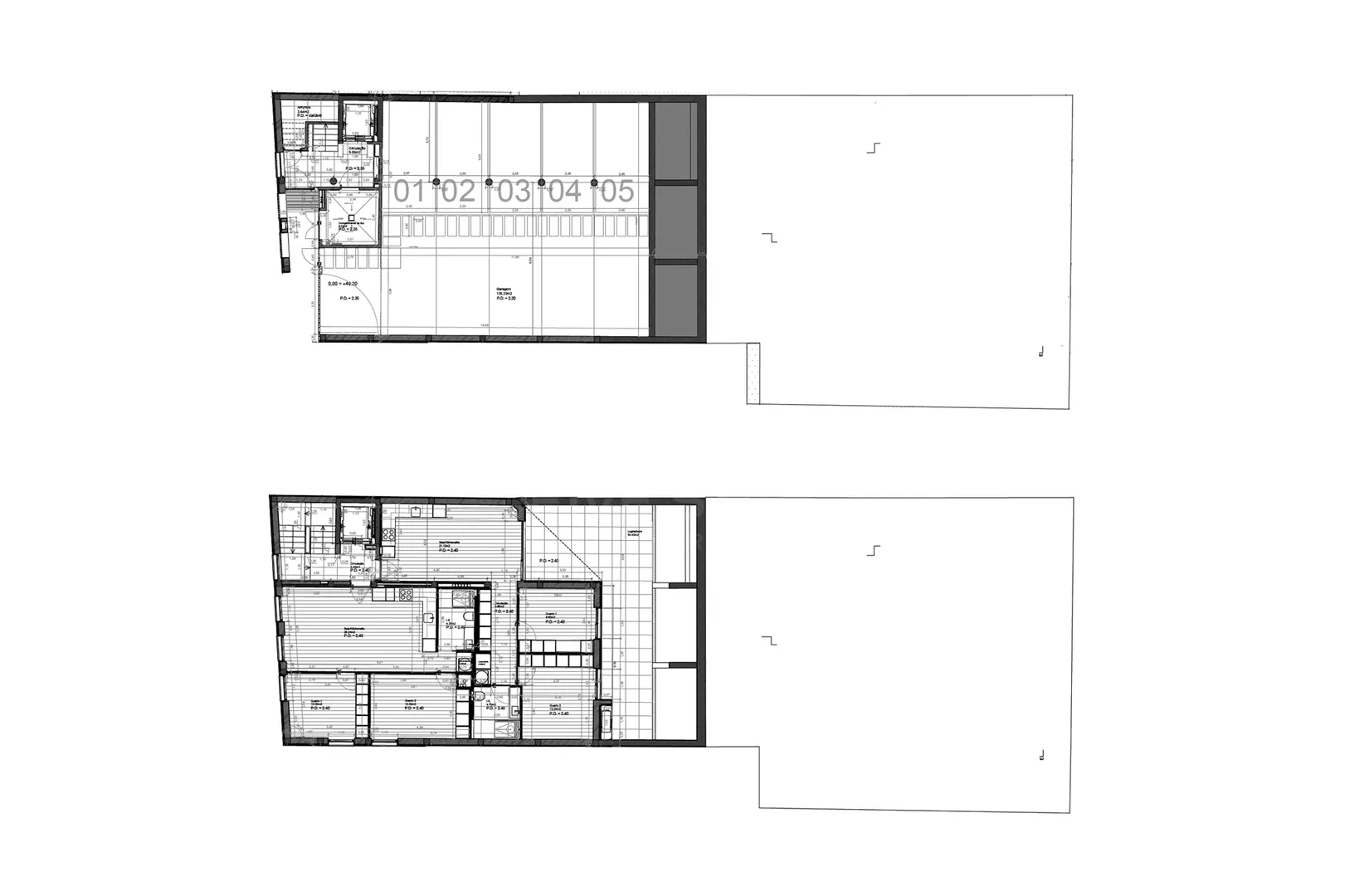
Projet approuvé :
Ce bâtiment en ruines, sur un terrain de 428 m², bénéficie d’un projet approuvé pour un bâtiment de 675 m² de superficie brute privée et 515 m² de superficie brute dépendante, avec les caractéristiques suivantes :
-
Bloc avec 5 appartements
(T2, T3 et T2+1)
Parking privé (une voiture chacun)
Ascenseur
Piscine commune et solarium, sur le toit avec vue panoramique
-
Immeuble avec 2 villas indépendantes de 3 chambres
Entrée privée
Parking exclusif (2 véhicules chacun)
Jardin et piscine privée
Emplacement unique :
Au cœur de Graça
, à côté du point de vue emblématique de Senhora do Monte, ce projet bénéficie d’un environnement authentique et dynamique, où la tradition lisboisette croise la vie contemporaine. La proximité du centre historique de Lisbonne, ainsi que la large gamme de boutiques, restaurants et services locaux, garantissent une expérience pratique et dynamique. Avec un excellent accès aux transports en commun, y compris le tramway emblématique, cet emplacement offre l’équilibre parfait entre centralité et tranquillité, ce qui en fait l’un des plus recherchés et appréciés de la ville.
Excellente occasion rare de développer un projet exclusif dans l’un des emplacements les plus prisés de Lisbonne.
Contactez-nous pour plus d’informations et de détails.
5SP Lda - AMI 22398
Type de propriété
Immeuble
Typologie
0 Chambres
Objectif
Vente
Etat
à Rénover
Prix
1 900 000 €
Année de construction
N/D
Pays
Portugal
Département
Lisboa
Ville
Lisboa
Lieu
Arroios
Zone
N/D
Alexandra Berger
+351 912 350 097
Pretendo ser contactado
Date
Hora
Nom
Insérer un nom
E-mail
Insérer un email
Entrez une adresse email valide
Contact
Entrez votre contact téléphonique
Message
Je demande plus d'informations, sans aucun engagement, à propos de la propriété 6372-PRE-AB
J´ai lu et accepte les termes et conditions énoncés.
Politique de confidentialité
Pour terminer cette opération, vous devez lire et accepter nos conditions.
Code
Entrez le code affiché dans l'image
Envoyer
Caractéristiques générales
Général
Pièces
Pièces
Lieu
Étage
Murs
Plafonds
Commentaires
Environnement
Commodités
Domotique
Energies Renouvelables
Estamos disponíveis para o ajudar
Pretendo ser contactado
Date
Hora
Nom
Insérer un nom
E-mail
Insérer un email
Entrez une adresse email valide
Contact
Insira o seu Contacto
Message
Li e aceito a
Politique de confidentialité
Pour terminer cette opération, vous devez lire et accepter nos conditions.
Code
Entrez le code affiché dans l'image
Envoyer
O que é a pesquisa responsável
Esta pesquisa permite obter resultados mais ajustados à sua disponibilidade financeira.